UNDERSTANDING LANDSCAPE DESIGN DRAWING FOR YOUR YARD
A beautifully designed landscape can transform your outdoor space into a personal oasis. However, creating a visually appealing design takes more than just planting flowers and installing a few pathways. A well-thought-out landscape design drawing is at the heart of every landscape project, serving as the blueprint for the entire project. Professional designers create landscape design blueprints to bring your vision to life. They outline every detail of your yard to provide you with a stunning outdoor space.
Without a detailed design, a landscaping project can quickly become overwhelming, leading to poor choices and wasted resources. Investing in a professional landscape design drawing helps visualize the final look. It ensures every element works together.
This guide explores the process behind creating these blueprints, what you can expect from a consultation, and why a scaled design plan is essential for a successful landscape transformation.

Planning a Landscape Design in Outdoor Projects
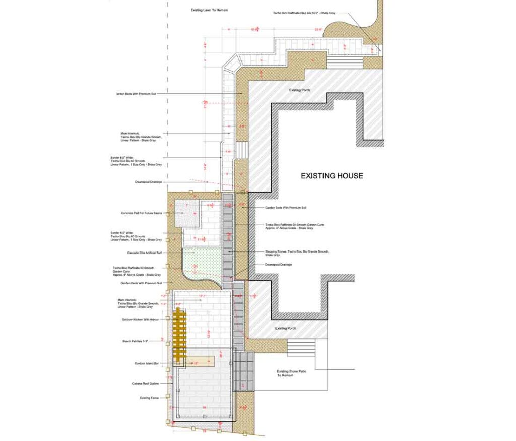
A landscape design drawing is more than just a sketch. It’s a comprehensive plan that outlines every aspect of your outdoor space.
Here are the parameters that you can expect in a detailed landscape drawing:
- Visual Blueprint: A design drawing allows you to visualize the final look of your landscape, showing you where every element will go. The drawing consists of elements like plants, lights, pathways, etc.
- Guiding Plan for Contractors: Detailed drawings serve as a guide for contractors. It provides precise measurements and clear instructions for installation.
- Cost Efficiency: By carefully planning the space, designers ensure the effective use of materials, reducing waste and unexpected expenses.
These drawings act as the foundation of the landscaping process, ensuring that all parties involved clearly understand the project scope and goals.
What to Expect in a Landscape Blueprint
Landscape design blueprints incorporate numerous details to ensure accuracy and aesthetic appeal.
Here are the primary elements included in most design drawings of a landscape:
1. Site Analysis and Measurements
Before drawing begins, designers analyze the site to understand its unique features and constraints. This includes observing the topography, soil quality, existing vegetation, sunlight patterns, and drainage conditions.
2. Scaled Layouts for Precision
Designers ensure the accuracy of blueprints by scaling them. They commonly use A 1:10 or 1:20 scale, meaning that one inch on the paper represents a certain number of feet in the actual space. This scaling allows for precision in placement and proportions.
3. Hardscape and Softscape Elements
A well-rounded landscape design includes hardscape (paths, patios, walls) and softscape (plants, lawns, trees) elements. Designers carefully select and place each element to create a balanced look that meets your needs.
4. Functional Zones and Pathways
Designers map out functional zones like seating areas, dining spaces, and play areas in the drawing, as well as pathways connecting these zones. Pathways are often strategically curved or angled to encourage movement through the landscape.
5. Planting Plan and Specifications
Designers outline a detailed planting plan, recording the types of plants, their placement, and any seasonal considerations. This section is essential for creating a balanced look and ensuring each plant thrives in its designated space.
Step-by-Step Process of Creating a Design Drawing

Step 1: Client Consultation and Vision Setting
The process begins with a consultation between the designer and the client. They discuss the client’s vision, lifestyle needs, and design preferences. This conversation helps the designer understand the overall goals for the landscape.
Step 2: Site Survey and Analysis
Next, the designer conducts a thorough site survey. The designer records measurements and notes on sunlight exposure, soil composition, and existing structures or features. Understanding the site’s limitations and possibilities is key to a successful design.
Step 3: Conceptual Sketches and Preliminary Layouts
Based on the consultation and site analysis, the designer creates rough sketches that explore different layouts and configurations. The designers typically show the client these sketches for feedback before proceeding with a detailed design.
Step 4: Detailed Landscape Blueprint
Once the client approves the concept, the designer develops a detailed, scaled drawing that includes every aspect of the project, from hardscapes to plant placements. This drawing becomes the primary guide for the installation phase.
Step 5: Final Review and Adjustments
The designer and client review the final drawing together, making any necessary adjustments. This ensures that the final design aligns perfectly with the client’s vision before the project moves into installation.
Navigating Zoning Requirements for Landscape Design
Navigating zoning requirements is crucial to the landscape design process, particularly in Ontario. Each municipality can have unique regulations. Zoning requirements often determine structure placement, the allowable heights for walls and fences, and the materials used for certain elements.
At Royal Decks and Landscapes, we ensure every design complies with these regulations. Our process begins with an in-depth zoning review, which includes a visit to the zoning department if required. This phase typically takes 3-5 days and is essential for avoiding any setbacks in project timelines.
Once confirming the zone requirements, we move on to collaborative brainstorming and preliminary sketches, aligning your budget with design possibilities. After the design phase, we create detailed permit drawings, all reviewed by a structural engineer, ensuring full compliance. Depending on complexity, approval from municipal departments can take 2-4 weeks, but this thorough approach guarantees a smooth and compliant build from start to finish.
Understanding Common Symbols and Notations in Landscape Drawings
Design drawings for a landscape use a variety of symbols and notations to represent different elements, making them easier for designers and contractors to interpret.
Plant symbols are usually shown as circles or other shapes, with the plant type or species labelled nearby.
Clusters often represent plant beds. Hardscape symbols, like pathways, patios, and retaining walls, are shown with solid lines or shaded areas to indicate different materials.
Contour lines highlight elevation changes, which is useful for sloped properties. Directional arrows point out pathways or key views, guiding the eye through the design.
These symbols provide a “map” that contractors can follow to ensure correctly installing every element.

Why Scaled Drawings Matter in Landscape Design
Scaled drawings accurately represent each element in the landscape, allowing for precise placement and balanced proportions.
These professional sketches are key to creating accurate and balanced landscape designs. By visualizing real-life distances, they ensure every element fits perfectly within the space. This accuracy prevents oversized pathways or cramped seating areas, keeping the design functional and proportionate.
Scaled drawings also support budget management by precisely estimating material quantities, helping control costs and reduce waste.
Designing for Ontario’s Unique Landscape
Ontario’s landscape design requires careful consideration of the local climate, soil, and seasonal changes. Designers consider these factors when drawing a perfect design for a stunning landscape.
Designers carefully choose plants that thrive in Ontario’s climate. They mostly focus on native species like maples, bee balm, and hostas. These plants require less maintenance and are more likely to flourish.
Evergreens, winterberry, and red osier dogwood add winter interest to ensure year-round appeal while flowering perennials provide vibrant summer colours.
Durable materials like pavers and natural stone are essential for hardscape features, as they can withstand Ontario’s freeze-thaw cycles and extreme temperature changes. This thoughtful approach ensures a landscape that is both beautiful and resilient.
This region-specific approach ensures the landscape design is sustainable and enjoyable throughout the year.

The Importance of Collaboration with Professional Designers
Creating a beautiful, functional landscape requires expertise. Professional landscape designers bring valuable experience to each project, considering factors like soil type, light exposure, and seasonal changes that DIY plans often overlook.
Professional designers bring valuable technical knowledge, selecting plants and materials that thrive in specific climates and conditions. Their expertise ensures efficient resource use, helping projects stay on budget and within the timeline.
Additionally, they create solid designs where every element works together, resulting in a polished and visually appealing outdoor space.
FAQs about Landscape Design
Q: How long does it take to create a design for a landscape?
A: The process typically takes 2-4 weeks, depending on the complexity of the project and client feedback. Larger, more intricate landscapes may take longer.
Q: Do I need a drawing for a small yard?
A: While it’s possible to landscape a small yard without a detailed drawing, a design drawing can still provide clarity and ensure each element works perfectly, especially for intricate spaces.
Q: What’s the difference between a conceptual sketch and a full design drawing?
A: A conceptual sketch provides a general layout and flow of the space, while a full design drawing includes specific measurements, plant placements, and construction details.
A landscape blueprint is a complete guide to the transformation of your outdoor space, ensuring every element is thoughtfully planned and beautifully integrated. From initial site analysis to the final design review, each step of the drawing process is crucial for creating a stunning and functional landscape.
If you are looking for an expert design guide, contact Royal Decks today. We can help you begin your journey toward a breathtaking outdoor retreat.

